- 価格
- 880万円
- 中古戸建
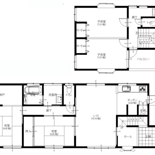
- 間取
- 4LDK
|
|
| 所在地 | 鹿児島県いちき串木野市別府 |
|---|---|
| 交通 | JR鹿児島本線神村学園前駅 徒歩600m |
| 築年月 | 平成12年5月 | 新築/中古 | 中古 |
|---|---|---|---|
| 面積 | 126.34m² | 計測方式 | |
| バルコニー | 向き | ||
| 建物階数 | 地上2階 | 部屋階数 | 2階 |
| 建物構造 | |||
| 間取内容 |
納戸付 |
||
| 駐車場 | 堀車庫有 駐車3台可 | 取引態様 | 仲介 |
| 引渡/入居時期 | 相談 | 現況 | 空家 |
| 地目 | 宅地 | 用途地域 | 無指定 |
| 都市計画 | 非線引き区域 | 地勢 | |
| 土地面積 | 409.76m² | 土地面積計測方式 | |
| 建ぺい率 | 70% | 容積率 | 400% |
| 周辺環境 |
照島小学校 串木野中学校 |
||
| 設備・条件 | |||
| 物件番号 | |||
広々敷地123.95坪 海まで1分
4LDK+納戸 堀車庫 駐車3台可 未登記車庫37.20㎡有
JR神村学園駅徒歩圏内
JR神村学園駅まで600m
神村学園まで700m
照島小学校まで850m
串木野中学校まで2500m
ローソン串木野神村学園前店まで750m
ドラッグストアコスモス串木野店まで1200m
だいわ串木野店まで1400m
Loading...
※物件掲載内容と現況に相違がある場合は現況を優先と致します。


















